Piętrowy dom ,warsztat - sprzedam INWESTYCJA np.zajazd, motel
Elbląg Pokaż na mapie ›
Odświeżone: Sobota, 27 Grudzień, 2025 14:05
2 999 000 zł
9997 zł/m2
Szczegóły ogłoszenia
- Kategoria: Domy / Sprzedaż
- Powierzchnia:300 m2
- Liczba pokoi:5 i więcej pokoi
- Pow. działki:5000 m2
- Rynek:Wtórny
- Rok budowy:2000
- Stan:Do zamieszkania
- Typ domu:Rezydencja
- Sprzedaż:Bez pośredników
- Inf. dodatkowe:Balkon, Taras, Ogródek, Dwupoziomowe, Pom. użytkowe, Piwnica, Miejsce parkingowe, Garaż
- Cena: 2 999 000 zł / 9997 zł/m2
- Ulica: Nowodworska 44
Opis oferty
Opis ofertySuper lokalizacja przy trasie wlotowej do Elbląga , duży dom z warsztatem samochodowym , rozruszniki alternatory ,naprawy / możliwość przystosowania na - motel , zajazd , pensjonat
Oferta przejęcie działającej firmy z tradycjami / kupno ,leasing , kredyt inne rozliczenia / firma prywatna z klientami - w pełnej eksploatacji , duża baza zamówień , współpracowników , kontrahentów i firm współpracujących itp.
Zakład regeneracji, naprawy elektro-mechanicznych samochodowy , sklep z częściami , magazyny, hale , usytułowany przy salonie samochodowym i trasie do Gdańska .
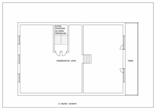
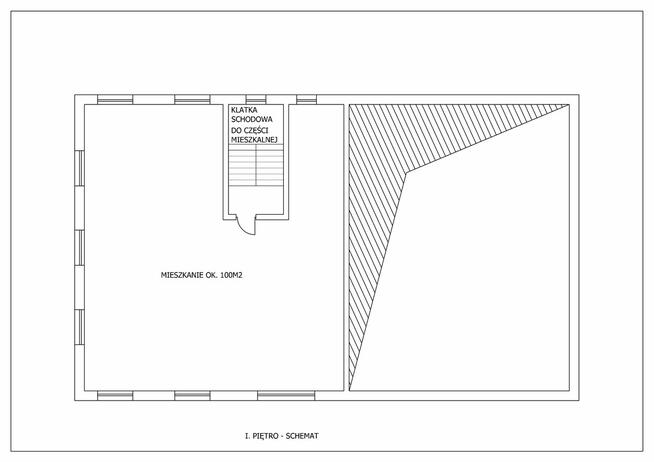
W kompleksie z komfortowym domem - kwatery dla załogi lub samodzielne trzy mieszkania .
Lokalizacja woj. warmińsko-mazurskie Elbląg .
Kontakt z negocjatorem - każdą ofertę rozpatrzymy
Sprawdź zainteresowanie tym ogłoszeniem
Wyświetlenia
Data dodania
Ostatnio widziany
Obserwujących
Wysłane zapytania
Odsłony telefonu
Powiadom o podobnych ogłoszeniach
Lokalizacja: Elbląg
Kategoria: Nieruchomości » Domy » Sprzedaż
Cena: od 2549000 zł do 3449000 zł Powierzchnia : od 255 m2 do 345 m2
Chcę otrzymywać powiadomienia o nowych ofertach
- Wypromuj ogłoszenie
- Zgłoś naruszenie
- Drukuj ulotkę
- Edytuj/usuń ogłoszenie
- Udostępnij ogłoszenie
- Dodaj na Facebook




























