Elzam Tower Premium M2
Elbląg Pokaż na mapie ›
Dodane: Czwartek, 18 Grudzień, 2025 11:28
388 052 zł
9239 zł/m2
Szczegóły ogłoszenia
- Kategoria: Mieszkania / Sprzedaż
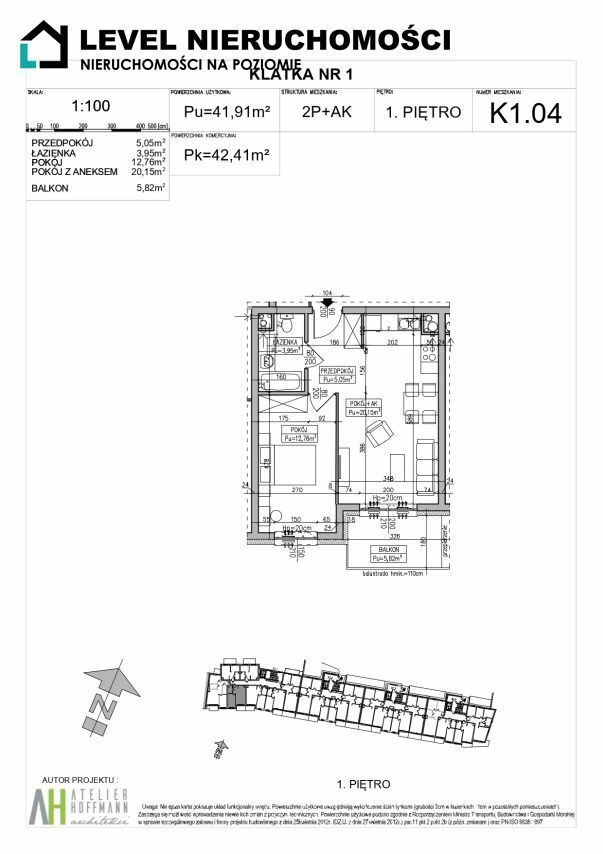
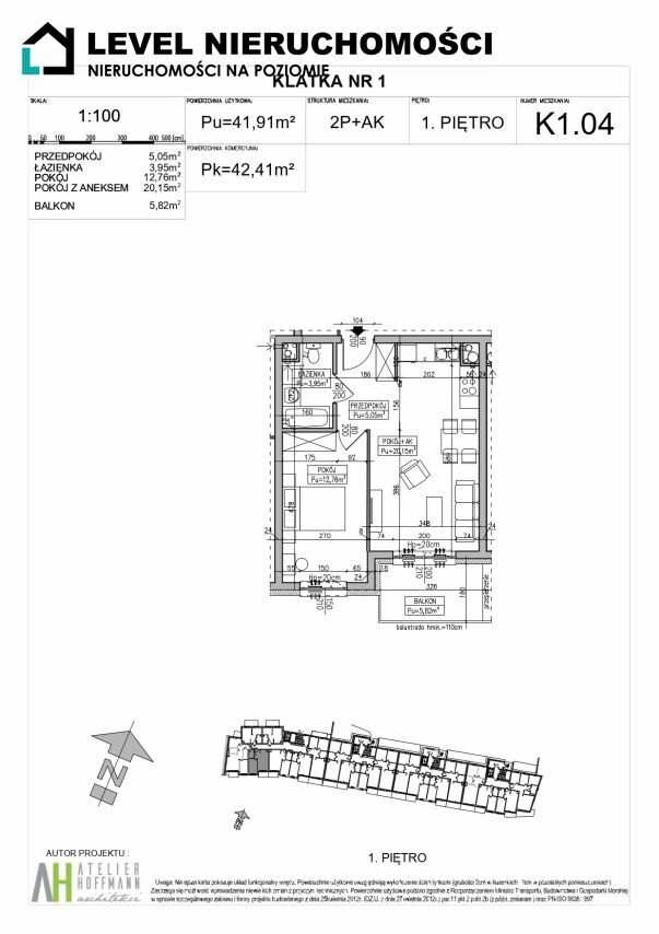
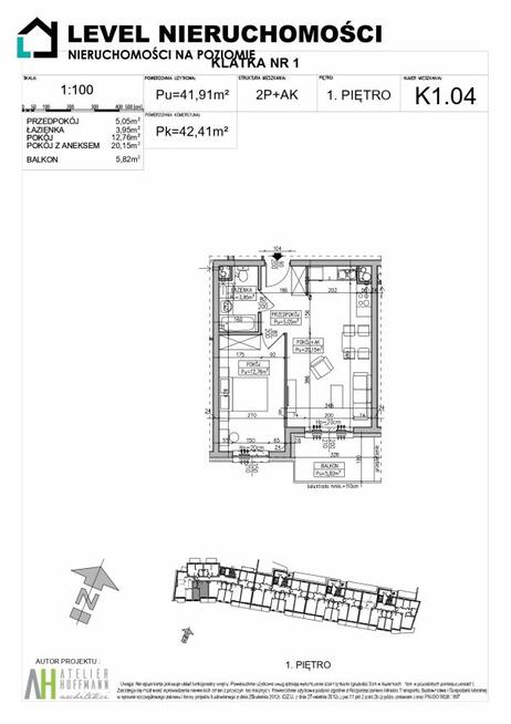
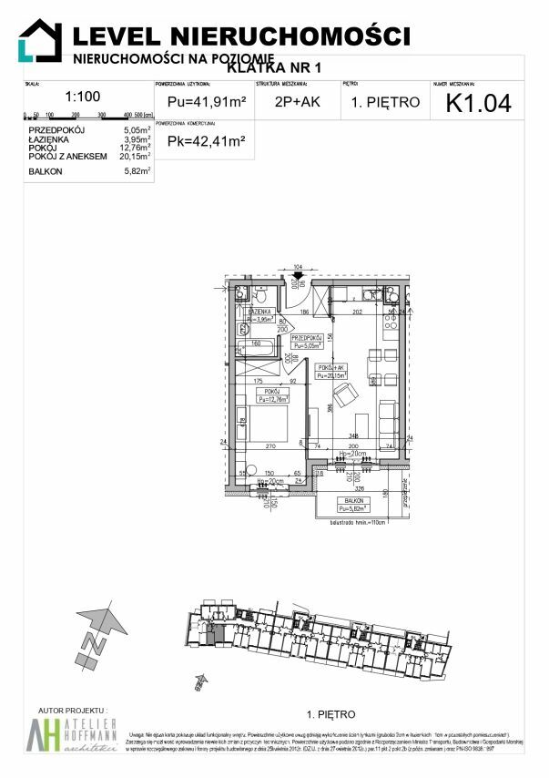
- Powierzchnia:42 m2
- Liczba pokoi:2 pokoje
- Zabudowa:Apartamentowiec
- Piętro :1 piętro
- Liczba pięter:Wieżowiec
- Rynek:Pierwotny
- Rok budowy:2024
- Sprzedaż:Pośrednik
- Cena: 388 052 zł / 9239 zł/m2
Opis oferty
Dziś do zaoferowania posiadamy mieszkanie deweloperskie w nowo powstałej inwestycji w Elbląg przy ulic Oboźnej jaką jest „Elzam Tower”. Nieruchomość dwupokojowa składa się z salonu z aneksem kuchennym z wyjściem na balkon, sypialni, łazienki oraz przedpokoju o łącznej powierzchni 42,41 m2. Mieszkanie zlokalizowane na pierwszym piętrze w budynku ośmiopiętrowym z cichobieżnymi windami.Cały obiekt wykonany w standardzie Premium, a co za tym idzie:
cekolowane i malowane dwukrotnie wszystkie ściany i sufity w każdym z pomieszczeń
tarasy i balkony z antypoślizgowymi płytkami
antywłamaniowe drzwi firmy GERDA
kompletna instalacja oraz odprowadzenie skroplin do podłączenia klimatyzacji
na klatkach i korytarzach posadzki granitowe
parapety wewnętrzne z konglomeratu białego
grzejniki z głowicami termostatycznymi
wycieraczki systemowe wpuszczone w posadzkę
Wszystkie mieszkania gotowe do zakupu z możliwością obejrzenia na żywo po wcześniejszym umówieniu. Możliwości wyboru innego piętra, metrażu lub rozkładu.
Za dodatkową opłatą:
miejsce w hali garażowej 69 000 PLN brutto
miejsce postojowe zewnętrzne 29 000 PLN brutto
komórka lokatorska od 10 000 PLN do 14 000 PLN brutto
Przyjdź, zobacz, zaprojektuj, zamieszkaj.
Bez prowizji dla biura !!! Bez podatku PCC !!!
Przedmiotowa oferta cenowa ma charakter informacyjny i nie stanowi oferty handlowej w rozumieniu Art. 66 par.1 Kodeksu Cywilnego.
Opis oferty sporządzony został przez pośrednika na podstawie oględzin oraz informacji pochodzących od właściciela, może podlegać aktualizacji i nie stanowi oferty handlowej w rozumieniu Art. 66 i następnych Kodeksu Cywilnego.
Przy zakupie nieruchomości należy uwzględnić koszty notarialne.
Sprawdź zainteresowanie tym ogłoszeniem
Wyświetlenia
Data dodania
Ostatnio widziany
Obserwujących
Wysłane zapytania
Odsłony telefonu
Powiadom o podobnych ogłoszeniach
Lokalizacja: Elbląg
Kategoria: Nieruchomości » Mieszkania » Sprzedaż
Cena: od 330000 zł do 446500 zł Powierzchnia : od 36 m2 do 48 m2
Chcę otrzymywać powiadomienia o nowych ofertach
Łukasz Jarkowski
Konto firmowe
Na Lento.pl od 04 wrz 2025
Strona użytkownika
- Wypromuj ogłoszenie
- Zgłoś naruszenie
- Drukuj ulotkę
- Edytuj/usuń ogłoszenie
- Udostępnij ogłoszenie
- Dodaj na Facebook































